กรมศิลปากร ขึ้นทะเบียน"ตึกสุริยานุวัตร" อาคารสภาพัฒน์ฯ เป็น"โบราณสถาน"
21 พ.ค. 2566

"ราชกิจจาฯ" เผยแพร่ ประกาศกรมศิลปากร ขึ้นทะเบียนและกำหนดเขตที่ดิน "ตึกสุริยานุวัตร" สำนักงานสภาพัฒนาการเศรษฐกิจและสังคมแห่งชาติ ให้เป็น"โบราณสถาน"
ข่าว
21 พ.ค. 2566

"ราชกิจจาฯ" เผยแพร่ ประกาศกรมศิลปากร ขึ้นทะเบียนและกำหนดเขตที่ดิน "ตึกสุริยานุวัตร" สำนักงานสภาพัฒนาการเศรษฐกิจและสังคมแห่งชาติ ให้เป็น"โบราณสถาน"
21 พฤษภาคม 2566 "ราชกิจจาฯ" เผยแพร่ ประกาศกรมศิลปากร เรื่อง ขึ้นทะเบียนและกำหนดเขตที่ดินโบราณสถาน
อาศัยอำนาจตามความในมาตรา ๗ แห่งพระราชบัญญัติโบราณสถาน โบราณวัตถุ ศิลปวัตถุ และพิพิธภัณฑสถานแห่งชาติ พ.ศ. ๒๕๐๔
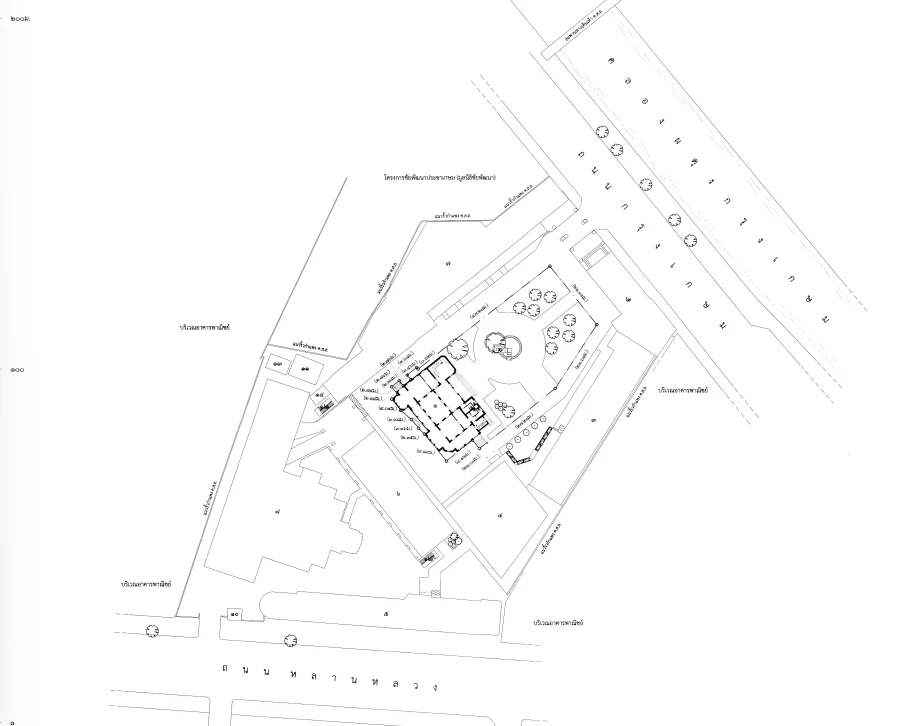
"กรมศิลปากร"จึงประกาศขึ้นทะเบียนและกำหนดเขตที่ดิน โบราณสถานตึกสุริยานุวัตร (สำนักงานสภาพัฒนาการเศรษฐกิจและสังคมแห่งชาติ) ถนนกรุงเกษม แขวงวัดโสมนัส เขตป้อมปราบศัตรูพ่าย กรุงเทพมหานคร ให้มีพื้นที่โบราณสถาน ๓ งาน ๘๓ ตารางวา
รายละเอียดดังปรากฏตามแผนผังแนบท้ายประกาศนี้
ประกาศ ณ วันที่ ๑๓ มีนาคม พ.ศ. ๒๕๖๖
พนมบุตร จันทรโชติ อธิบดีกรมศิลปากร
สำหรับ "บ้านสุริยานุวัตร” สร้างขึ้นในราวปี 2448 เป็นบ้านที่พระบาทสมเด็จพระจุลจอมเกล้าเจ้าอยู่หัว พระราชทานเพื่อตอบแทนคุณความดี ในการปฏิบัติราชการด้วยความสามารถ ความเพียร และซื่อสัตย์สุจริตมาโดยตลอดของ "พระยาสุริยานุวัตร” ออกแบบก่อสร้างโดยนายมารีโอ ตามัญโญ สถาปนิกชาวอิตาเลียน คนเดียวกับที่ออกแบบก่อสร้างพระที่นั่งอนันตสมาคม
"บ้านสุริยานุวัตร” มีประวัติความเป็นมาที่กล่าวได้ว่าเป็นส่วนหนึ่งของตำนานด้านการพัฒนาเศรษฐกิจและสังคมของประเทศไทย เนื่องจากเป็นอาคารที่ทำงานถาวรหลังแรกของสำนักงานคณะกรรมการพัฒนาการเศรษฐกิจและสังคมแห่งชาติ (สศช.) หรือสภาพัฒน์ ตั้งแต่เริ่มก่อตั้งมาจนถึงปัจจุบัน
แต่ความสำคัญมิได้อยู่เพียงแค่นั้น จากการค้นคว้าถึงความเป็นมา ได้ค้นพบถึงความบังเอิญอย่างน่าอัศจรรย์เกี่ยวกับความสัมพันธ์เชื่อมโยงอย่างลึกซึ้งของบ้านสุริยานุวัตรกับภารกิจหลักของ สศช. นั่นคือ บ้านหลังนี้ในอดีตเคยเป็นบ้านพักอาศัยของ มหาอำมาตย์เอก พระยาสุริยานุวัตร ซึ่งมีประวัติการทำงานและผลงานที่น่ายกย่อง และยังเป็น "นักเศรษฐศาสตร์คนแรกของไทย” ผู้เขียน "ทรัพย์ศาสตร์” ตำราเศรษฐศาสตร์เล่มแรกของไทย
ขอบคุณภาพและข้อมูล : จากสำนักงานสภาพัฒนาการสังคมและเศรษฐกิจแห่งชาติ
คลิกอ่านฉบับเต็ม >>>
กรมศิลปากร ขึ้นทะเบียน"ตึกสุริยานุวัตร" เป็นโบราณสถาน
ข่าวล่าสุด